Projekty
Arosa
Nowoczesny, parterowy dom zaprojektowany nawet dla pięcioosobowej rodziny – posiada cztery wygodne sypialnie. Strefę dzienną stanowi przestronny, słoneczny salon z kominkiem oraz kuchnia. Jest to dom o prostej bryle, ale w nowoczesnej estetyce, która wzbogacają ciekawe rozwiązania elewacji. Prosta konstrukcja dachu powoduje, że dom jest bardzo ekonomiczny w realizacji.
Autorzy projektu: dr inż. arch. Ludwika Juchniewicz-Lipińska, dr inż. arch. Miłosz Lipiński
Parametry domu
- pow. użytkowa: 120,43 m2
- pow. netto: 120,43 m2
- pow. zabudowy: 149,48 m2
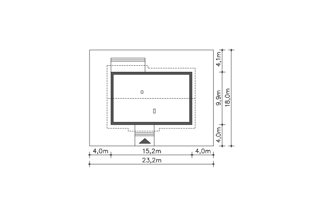
- min. szerokość działki: 23,20 m
- kubatura: 776,00 m2
- wysokość kalenicy: 6,73 m
- kąt nachylenia dachu: 30,0
- pow. dachu brutto: 220,07 m2
Parter
- wiatrołap 4,76 m2
- kuchnia 10,80 m2
- pokój dzienny 32,77 m2
- pokój 9,57 m2
- pokój 10,08 m2
- pokój 12,75 m2
- pokój 15,19 m2
- łazienka 8,03 m2
- wc 2,04 m2
- komunikacja 9,82 m2
- pom. gosp., c.o. 4,62 m2
Parter
- podest 5,38 m2
- taras 12,80 m2
Skontaktuj się z nami
Andrzej Grzelewski: +48 502 454 572
e-mail: biuro@techmaplus.pl
Zakład Produkcyjny:
ul. Fabryczna 13 C, 11-040 Dobre Miasto


