Projekty
Nikozja II
Piękny, prosty i funkcjonalny dom przeznaczony dla czteroosobowej rodziny. Sypialnia rodziców znajduje się na dole i posiada własną łazienkę, natomiast sypialnie dzieci zlokalizowane są na poddaszu. Na parterze mamy również przestronny salon połączony z kuchnią, spiżarnię i toaletę dla gości. Część gospodarczą stanowi dwustanowiskowy garaż, kotłownia i pralnia oraz strych nad garażem.
Autorzy projektu: dr inż. arch. Ludwika Juchniewicz-Lipińska, dr inż. arch. Miłosz Lipiński
Parametry domu
- pow. użytkowa: 149,52 m2
- pow. garażu: 32,14 m2
- pow. pom. pomocniczego: 15,12 m2
- pow. użytkowa: 28,84 m2
- pow. netto: 248,36 m2
- pow. zabudowy: 173,49 m2
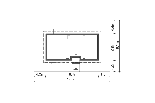
- min. szerokość działki: 26,70 m
- kubatura: 1 050,00 m2
- wysokość kalenicy: 7,76 m
- kąt nachylenia dachu: 35,0
- pow. dachu brutto: 270,00 m2
- wysokość ścianki kolankowej: 0,57 m
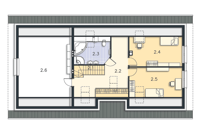
Parter
- wiatrołap 6,69 m2
- komunikacja 3,24 m2
- wc 1,65 m2
- kuchnia 12,44 m2
- spiżarnia 2,88 m2
- pokój dzienny 31,32 m2
- pokój 14,07 m2
- łazienka 8,33 m2
- pralnia, c. o. 8,87 m2
- garaż 32,14 m2
- pom. pomocnicze 15,12 m2
Parter
- podest 4,97 m2
- taras 13,23 m2
- podest 2,16 m2
Skontaktuj się z nami
Andrzej Grzelewski: +48 502 454 572
e-mail: biuro@techmaplus.pl
Zakład Produkcyjny:
ul. Fabryczna 13 C, 11-040 Dobre Miasto



