Projekty
Franklin III
Dom parterowy, o zwracającej uwagę bryle – idealna propozycja dla inwestorów szukających swojego wygodnego, przytulnego, ale wyróżniającego się miejsca na ziemi. Do wnętrza zaprasza ciekawie zaaranżowana strefa wejściowa, zlokalizowana w niewielkim podcieniu, który chroni przed deszczem.
W podobnym stylu zaprojektowano również taras od strony ogrodu, gdzie z przyjemnością można się zrelaksować. Centrum domu stanowi duży salon z kominkiem i otwarta na niego kuchnia. Strefę prywatną podzielono pomiędzy dwie wygodne sypialnie i komfortową łazienkę.
W domu przewidziano także przydatne pomieszczenie gospodarcze, w którym znajduje się kocioł gazowy. Drewniane elementy elewacji ozdabiają bryłę i podkreślają jej charakterystyczne cechy.
Autorzy projektu: dr inż. arch. Ludwika Juchniewicz-Lipińska, dr inż. arch. Miłosz Lipiński
Parametry domu
- pow. użytkowa: 100,70 m2
- pow. netto: 100,70 m2
- pow. zabudowy: 131,65 m2
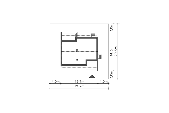
- min. szerokość działki: 21,70 m
- kubatura: 685,00 m2
- wysokość kalenicy: 6,82 m
- kąt nachylenia dachu: 30,0
- pow. dachu brutto: 173,11 m2
Parter
- wiatrołap 5,55 m2
- komunikacja 11,58 m2
- pom. gosp., c.o. 2,65 m2
- kuchnia 14,23 m2
- pokój dzienny 28,45 m2
- łazienka 10,42 m2
- pokój 13,91 m2
- pokój 13,91 m2
Parter
- podest 10,86 m2
- taras 12,05 m2
- podest 0,81 m2
- podest 0,81 m2
Skontaktuj się z nami
Andrzej Grzelewski: +48 502 454 572
e-mail: biuro@techmaplus.pl
Zakład Produkcyjny:
ul. Fabryczna 13 C, 11-040 Dobre Miasto


