Projekty

Praia II

Niewielki, nowoczesny dom parterowy z dwuspadowym dachem, o zwartej bryle, przewidziany w standardzie energooszczędnym, dzięki czemu nie jest drogi w eksploatacji, a przy tym wygodny i funkcjonalny. Dzięki niewielkiej szerokości może być zlokalizowany nawet na bardzo wąskiej działce.
Idealnie nadaje się dla pary lub niewielkiej rodziny. W domu zaplanowano wygodną sypialnię małżeńską, przytulny salon, doświetlony dużym oknem, aneks kuchenny z częścią jadalnianą, łazienkę oraz dodatkowy pokój, doskonale sprawdzający się jako gabinet lub pokój gościnny.
Projekt zapewne zwróci uwagę Inwestorów, którzy szukają niewielkiego, wygodnego i nowoczesnego domu, który można wybudować na działce, gdzie płaski dach nie jest dopuszczony. 

Autorzy projektu: dr inż. arch. Ludwika Juchniewicz-Lipińska, dr inż. arch. Miłosz Lipiński

Parametry domu

  • pow. użytkowa: 65,32 m2
  • pow. netto: 65,32 m2
  • pow. zabudowy: 86,16 m2
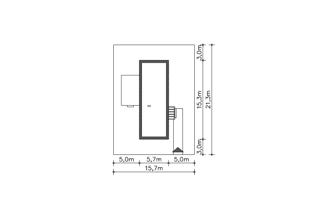
  • min. szerokość działki: 15,70 m
  • kubatura: 371,00 m2
  • wysokość kalenicy: 5,13 m
  • kąt nachylenia dachu: 30,0
  • pow. dachu brutto: 99,24 m2

Parter

  • wiatrołap 2,93 m2
  • komunikacja 3,23 m2
  • pokój 15,36 m2
  • łazienka 5,31 m2
  • salon z kuchnią 27,21 m2
  • pokój 11,28 m2

Parter

  • podest 3,00 m2
  • taras 20,30 m2

Skontaktuj się z nami

Andrzej Grzelewski: +48 502 454 572

e-mail: biuro@techmaplus.pl

Zakład Produkcyjny:
ul. Fabryczna 13 C, 11-040 Dobre Miasto

Prywatność

15 + 6 =