Projekty
Ulm
Wąski dom energooszczędny z użytkowym poddaszem, o prostej bryle, przykuwający uwagę nowoczesnym rozwiązaniem elewacji. Zadaszone wejście prowadzi do hallu, z którego można przejść do dużego, jasnego salonu z miejscem na stół jadalny i z kącikiem kominkowym.
Na parterze oprócz kuchni, mieści się wc oraz pomieszczenie z kotłem c.o. Poddasze podzielono na dwie łazienki oraz trzy sypialnie. Dwie z nich mogą być przeznaczone na pokoje dziecinne, trzecia – z prywatną łazienką i garderobą – będzie wygodnym azylem dla rodziców. Dzięki zastosowaniu dużych przeszkleń, wszystkie pomieszczenia w budynku są doskonale doświetlone.
Autorzy projektu: dr inż. arch. Ludwika Juchniewicz-Lipińska, dr inż. arch. Miłosz Lipiński
Parametry domu
- pow. użytkowa: 118,43 m2
- pow. netto: 138,46 m2
- pow. zabudowy: 87,29 m2
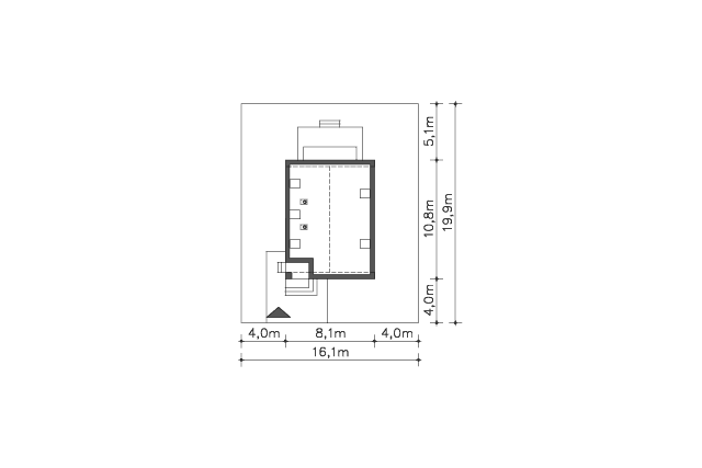
- min. szerokość działki: 16,10 m
- kubatura: 564,00 m2
- wysokość kalenicy: 8,75 m
- kąt nachylenia dachu: 45,0
Parter
- wiatrołap 2,97 m2
- hall 6,36 m2
- kuchnia 12,60 m2
- pokój dzienny 35,54 m2
- schowek 0,94 m2
- pom. gosp., c.o. 3,40 m2
- wc 2,01 m2
- podest 4,59 m2
- taras 17,67 m2
Parter
- schody 4,07 m2
- komunikacja 5,19 m2
- pokój 9,42 m2
- pokój 10,44 m2
- garderoba 1,94 m2
- pokój 11,99 m2
- łazienka 6,10 m2
- łazienka 5,46 m2
- balkon 5,06 m2
Skontaktuj się z nami
Andrzej Grzelewski: +48 502 454 572
e-mail: biuro@techmaplus.pl
Zakład Produkcyjny:
ul. Fabryczna 13 C, 11-040 Dobre Miasto



